We Are A Part of Their Success Story
Leading architects, engineers, and contractors rely on our scan to BIM services for consistent, high-quality project outcomes.
Our Scan to BIM Services Cover
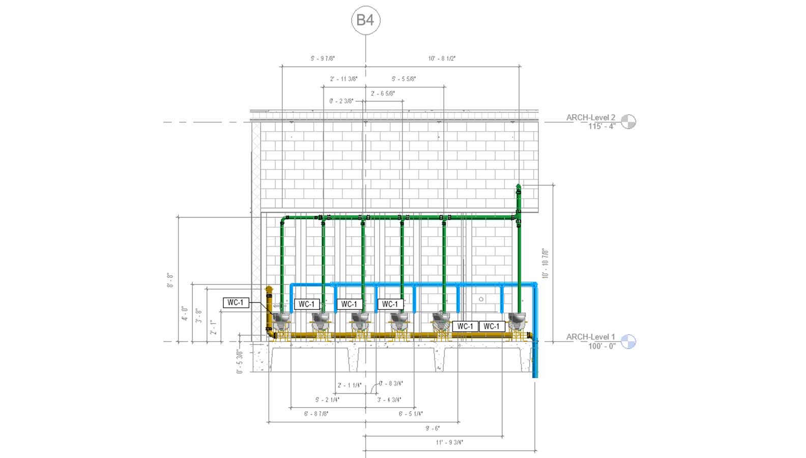
Our 100+ MEP engineers specialize in Scan to BIM services. We create accurate 3D models with LOD 200, 300, and beyond details, ensuring precise representation of existing MEPF elements.

Scan to BIM (LOD 200)
A preliminary model with approximate geometry and spatial relationships of mechanical, electrical, and plumbing components within a building.

Scan to BIM (LOD 300)
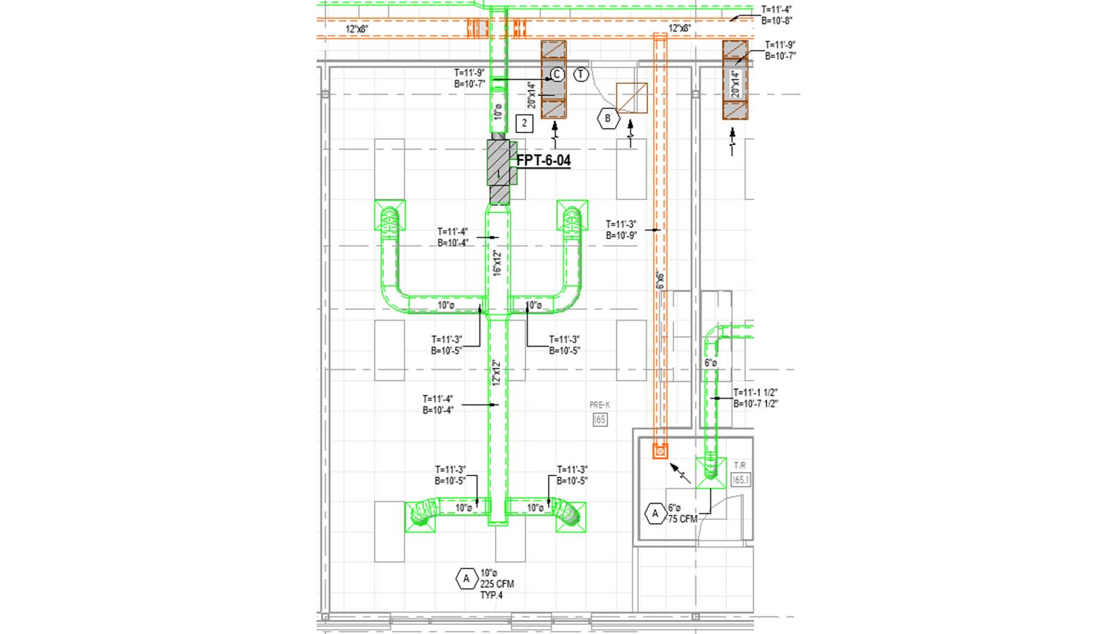
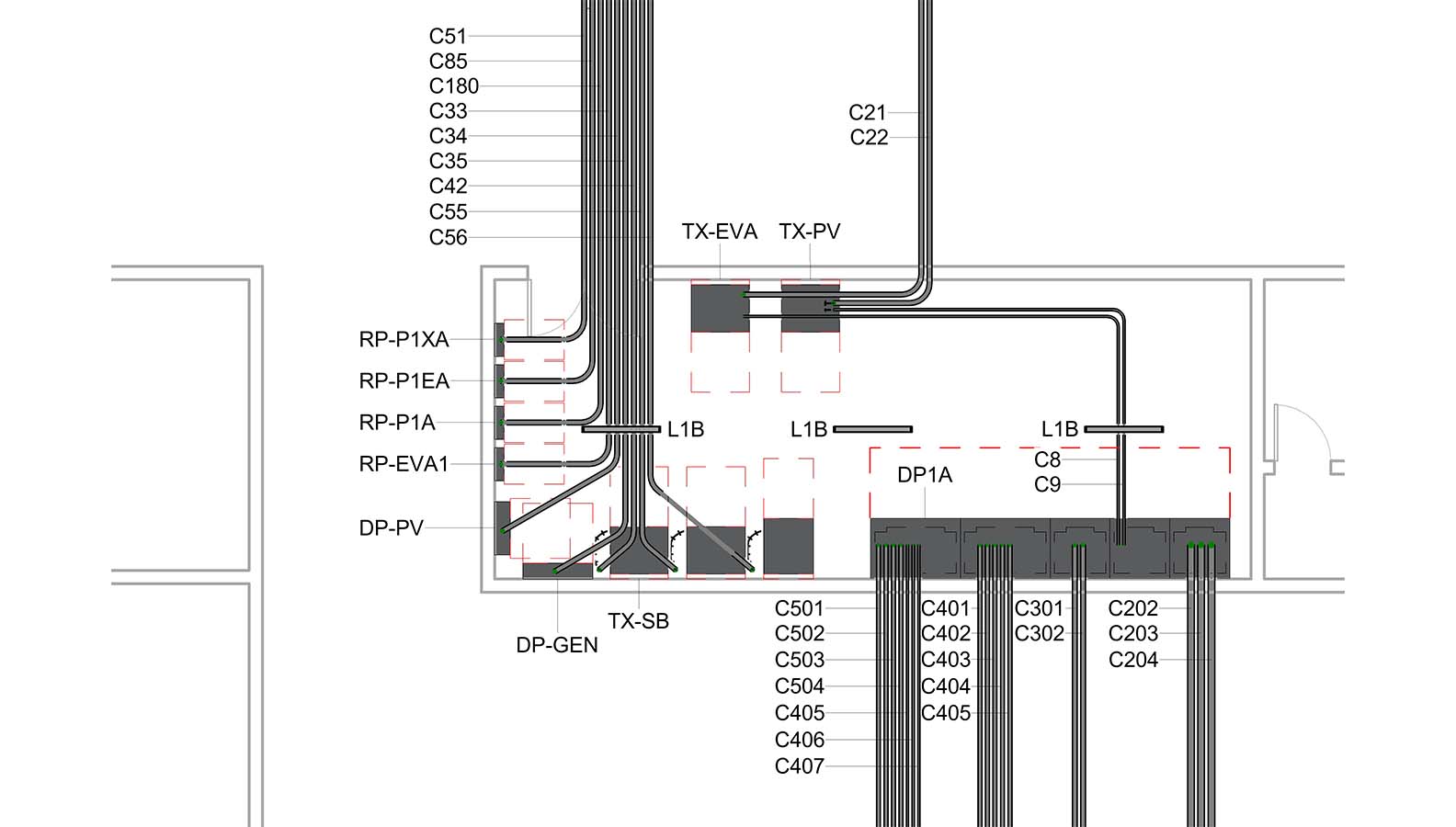
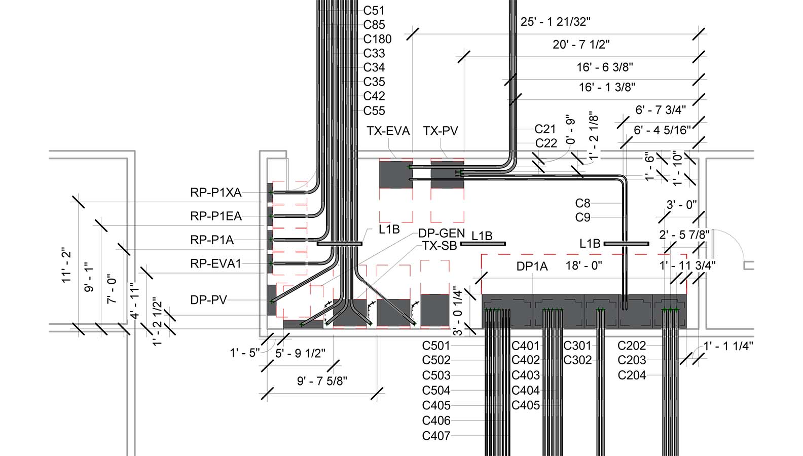
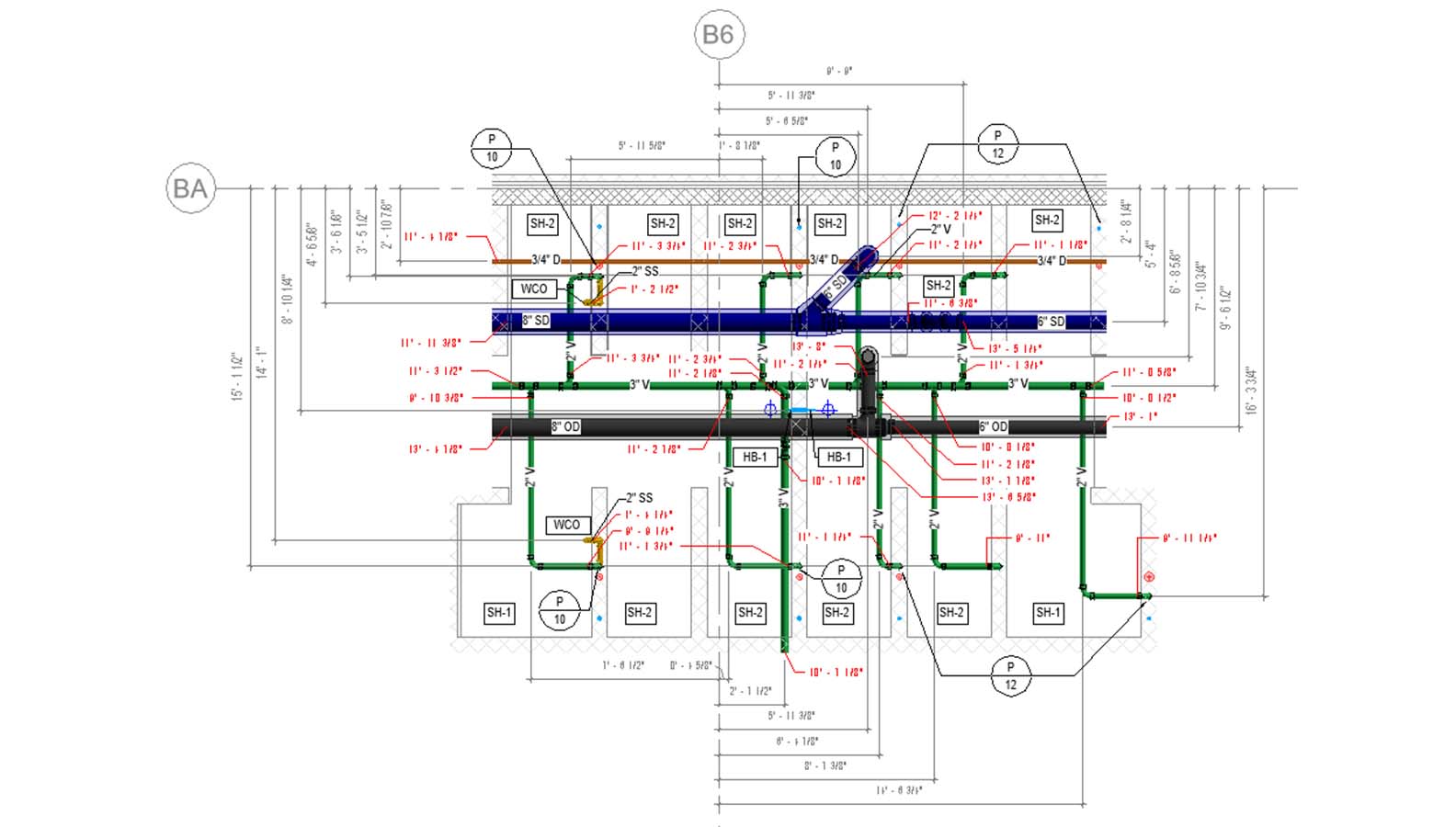
A model with precise geometry accurately representing MEPF components like ducts, pipes, conduits, cables, and fire protection systems

Scan to BIM (LOD 300+)
A Model integrate models integrate specific scan data like ducts, pipes, conduits, electrical fixtures, enhanced with precise specifications and dimensions for accurate construction and fabrication.
Our Scan to CADServices Covers
With 150+ Dedicated Architects and Engineers, we specialize in precise Scan to BIM and Scan to CAD services, tailored for Surveyors, Architects, and Engineers in both ACS and MEPF disciplines.
ROI Calculator
Compare speed, quality, and affordability of our Scan to BIM services. Get an automated quote tailored to your project size, building type, and LOD requirements.
Enter value to get detail

Building Type
Sq.Ft.
| ROI Matrix | Attributes | Other Companies | With Scan to BIM |
|---|---|---|---|
| | Total Sq. Ft | $0 | $0 |
| | No. of Days | 4-5 days | 1-2 days |
| | QC rating |
ROI
Why Choose Us?
Due to our AI based developed Tool, we are saving 50% human effort that is the reason of lower price
Due to our AI based developed Tool, Our efficiency is higher than other competitiors
Our in-house developed plugin checks 100+ Quality checks that ensures world class quality deliverables
Benefits

Affordability
Get benefits of our advanced AI tools and plugins for precise and efficient results at Just $10/Hour.

Quality
Using the world’s best quality control tool that checks 100+ parameters in models that ensure consistent, industry-standard BIM models.

Turn Around Time (TAT)
Our advanced AI tools and plugins enable us to convert 10,000 Sq.Ft. of Scan to BIM in just 1 day.
Frequently Asked Questions
Find fast answers to the questions most frequently asked by new customers exploring our service for the first time.
Contact Us
Let’s discuss your requirements and see how our expertise can help
on your next project.



























